EAGLE MOUNTAIN — As a new neighborhood expands in Eagle Mountain where scattered petroglyphs are located, Finn Kofoed notes that the landowners over the years could have taken a different approach in dealing with the rock art as development evolved.
"They could have just gone in and bulldozed that whole place," said Kofoed, Eagle Mountain's assistant city manager.
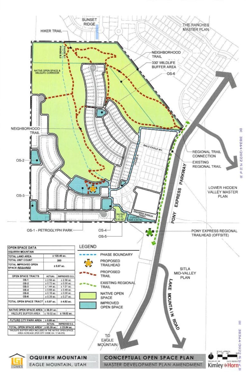
Instead, the varied developers have agreed to protect the rock art, per formal accords with the city, even as more and more houses go in and fast-growing Eagle Mountain expands into new terrain. Some of the petroglyphs in the area, dubbed the Oquirrh Mountain Ranch subdivision, sit out in the open, accessible to the public, though within fenced enclosures.
“The intent has always been to safeguard and protect the petroglyphs. The city has worked with the various owners over the years to preserve the art and eventually have it displayed in the park designated for that purpose,” Kofoed said. Plans call for construction of 206 more homes on a 120-acre expanse in the area, making for a total of 260 units, including the 54 existing Oquirrh Mountain Ranch dwellings.
Nevertheless, some are still concerned.

Even with the protections to be implemented, the petroglyphs — focus of on-and-off debate and attention over the years — will be close to people, potentially putting them at heightened risk of damage or destruction. Ann Marie Archuleta, for one, has started a campaign to protect the art, even though she doesn't live in the area off the west side of Pony Express Parkway where it intersects with East Oquirrh Ranch Parkway.
"Shouldn't we be saving that for future generations?" she said. "It's part of culture. It's part of history."
On learning of the petroglyphs, she traveled from her home in Layton to see them and has since launched efforts to raise awareness about the rocks and protect them. Seeing heavy construction equipment near the petroglyphs in particular prompted her concern, though she also worries of possible damage by foot traffic and all-terrain vehicles. The equipment is moving dirt, clearing the ground to make way for new streets and homes.
The area was historically inhabited by members of Skull Valley Band of Goshute, the Paiute Tribe and/or the Fremont people, Archuleta said, and their sentiments ought to figure in the matter. One of the tribes' representatives declined comment while Dustin Jansen, director of the Utah Division of Indian Affairs, said his office is aware of the Eagle Mountain situation.
"We are allowing the city and the developer to work together to protect these cultural sites," Jansen said in a statement. "We encourage the city and developer to consult with local tribes, the Skull Valley Goshutes and the Confederated Tribes of the Goshute Reservation, as they work through these issues."

Those interested in the topic, he went on, should attend any meetings held on the issue and use public comment opportunities to speak out.
Christopher Merritt, head of the Utah State Historic Preservation Office, is also aware of the concerns. "We are working with all parties to protect and preserve, as we have in the past," he said in a statement.
Representatives from the property owner, LGI Homes-Utah, didn’t respond to a KSL.com query seeking comment. New homes in the area start at $429,900 and go up to $539,900, according to the website for the development. But city officials, who have cataloged the best they can the varied petroglyphs, keep in contact with the developers.
"They've been very, very gracious and willing to work with us on that," Kofoed said.
The sun, a bird, a deer?
Archuleta has posted pictures of the petroglyphs in the Eagle Mountain area to the Facebook page she created to defend them. What exactly they represent isn't always clear. Nonetheless, they've garnered plenty of attention.
"Some of these things look like scribbles and some look like they are symbolic, like animals and hunting. ... One looks like the sun, another looks like a bird, another like an antelope or deer," a developer told the Daily Herald in 2008 in an article about the Eagle Mountain petroglyphs.
During a visit on Wednesday to the area, Eagle Mountain City Administrator Paul Jerome pointed to one etching seemingly depicting three figures. "Depending on who you ask, three warriors, three chiefs or three kings," he said.
Petroglyphs, he went on, may variously be directional, tell personal stories or indicate good hunting grounds, though it's all conjecture and they can sometimes be hard to discern to the untrained eye. "There's really no way to tell exactly what they mean," Jerome said.

Even back in 2008, developers intended to take steps to safeguard the petroglyphs, and the latest incarnation of the protective measures are spelled out in a March 16, 2022, planning agreement between LGI Homes-Utah and Eagle Mountain. An area where petroglyphs are concentrated will be turned into what's called Petroglyph Park. More acreage is to remain undeveloped.
"Detailed park plans for the areas surrounding the petroglyphs shall include protection of the petroglyphs and enhancement of the viewing experience, to be approved by the city parks and recreation director and planning director prior to any improvement in those areas," reads the planning agreement.
Troy Scotter of the Utah Rock Art Research Association, formed to preserve rock art, said petroglyphs are scattered all around the Saratoga Springs area, not just Eagle Mountain. While art on federal land would have protections, he said, that's not the case on privately owned land.

"Protection of rock art on private land is based on the goodwill of the landowner, which may be influenced by the public, media, advocacy groups like URARA (Utah Rock Art Research Association), education about the age and importance archeological resources and municipal governments," he said. "In addition to the ethical considerations, some land owners find that protected rock art and other archeology can enhance the value of their development."
Now there are rumblings of possible development on the east side of Pony Express Parkway adjacent to Oquirrh Mountain Ranch, where additional petroglyphs are located. Kofoed said city officials will likely take steps with the developer when the time comes to safeguard the rock art there. Either way, it underscores the fast-changing nature of the area and figures in Archuleta's worries about the future of the rock art in the area.
“I just don’t want to see it destroyed. That’s the main thing,” she said.
